THE GARDEN OF ENCOUNTERS
Master's thesis / Intergenerational Community Garden
Master's thesis / Intergenerational Community Garden
Typology_ Housing
Location_ Malmö, Sweden
Size_ 500 sqm
Year_ 2024
Team_ Astrid Hård af Segerstad
Malmöhus Castle has continuously evolved over time - from a Renaissance fortress to the museum it is today. The course assignment was to explore how accessibility and wayfinding within the museum could be improved, and to develop a dedicated workspace for the museum staff. Enhancing the future of Malmöhus Castle while respecting its past was an invaluable learning experience, providing me with architectural tools to work with transformation, and to preserve the original qualities and values of a historic building while adapting it to new functions and needs.
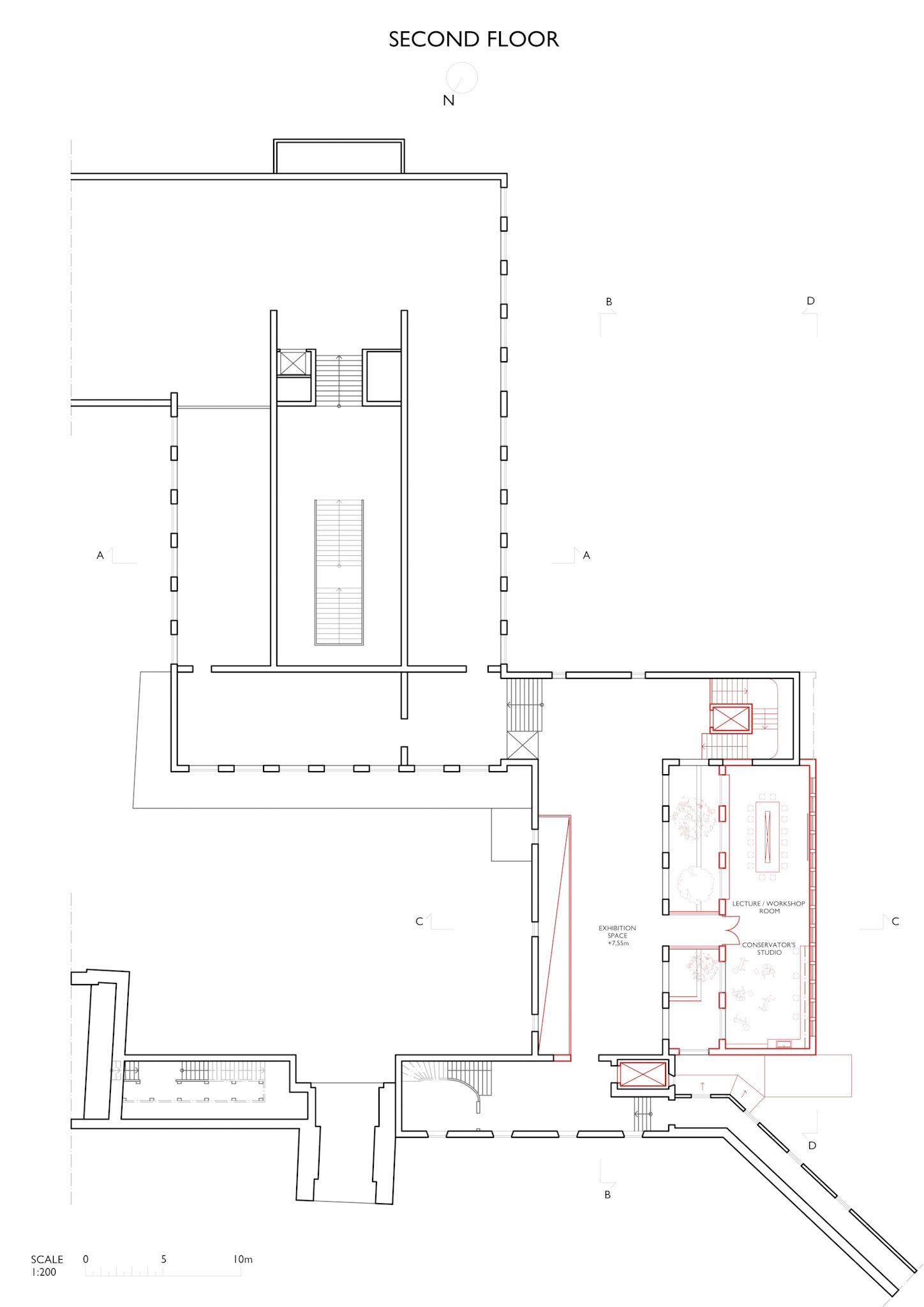
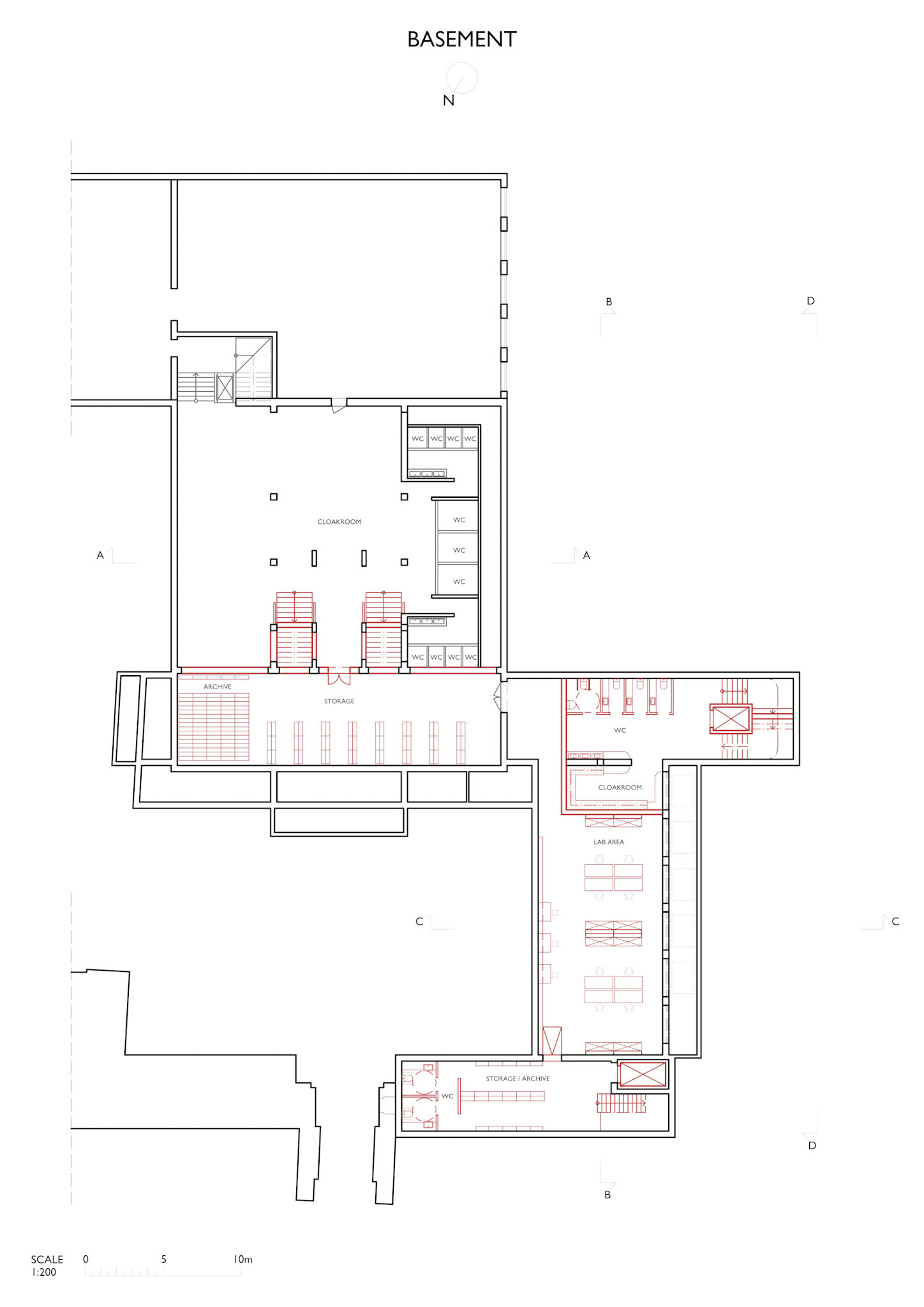
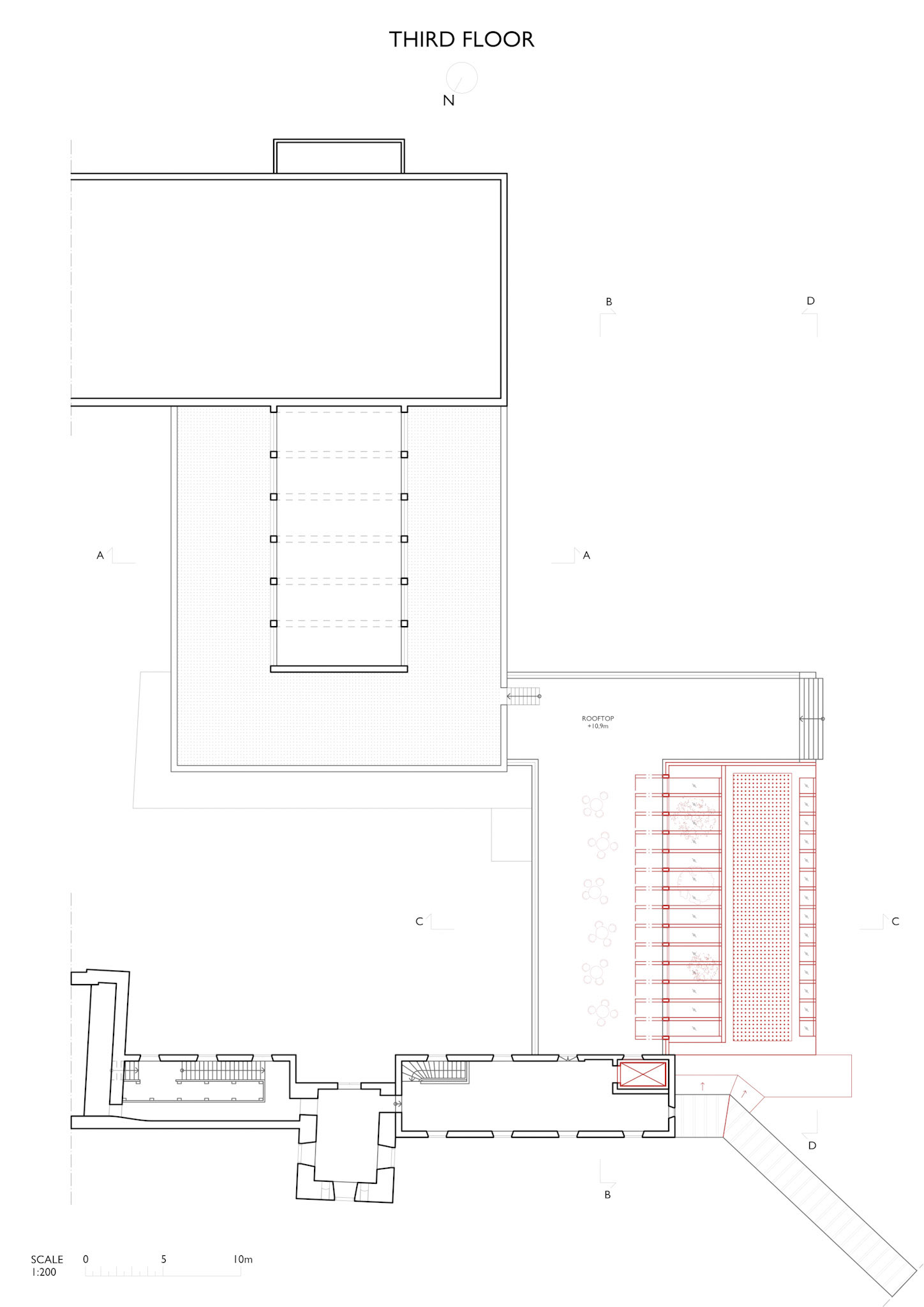
The main focus of this project was to create a space for museum staff - a calm oasis close to the museum, yet private and separate. The solution was a new addition to the western wing, in the space between the old bastion and the 1930s section of the museum. Here, staff members were given workspaces and access to a lush, green atrium garden on the ground floor. On the upper floor, a space was designed for lectures and workshops, accessible directly from the museum via a bridge. A new film/lecture hall was also introduced, which can serve as a meeting point for visitors and school groups before or after their museum visit.
The concept for the transformation and addition was developed with the goal of improving circulation through the building and creating spatial environments with more natural light and vertical structures - enhancing and highlighting the qualities of the existing museum building and the rich history of Malmöhus.